1. Bluebeam Construction Software
  2. Try It Free
  3. Open Mobile Navigation Close Mobile Navigation
Bluebeam Drawing & Document Management icon

Construction Drawing & Document Management Software

Keep everyone on the latest set.

Streamline workflows, improve communication, reduce costs, and ensure compliance with Bluebeam’s industry-leading tools for construction drawing and document management.

Try It Free

Simplify document management and collaboration

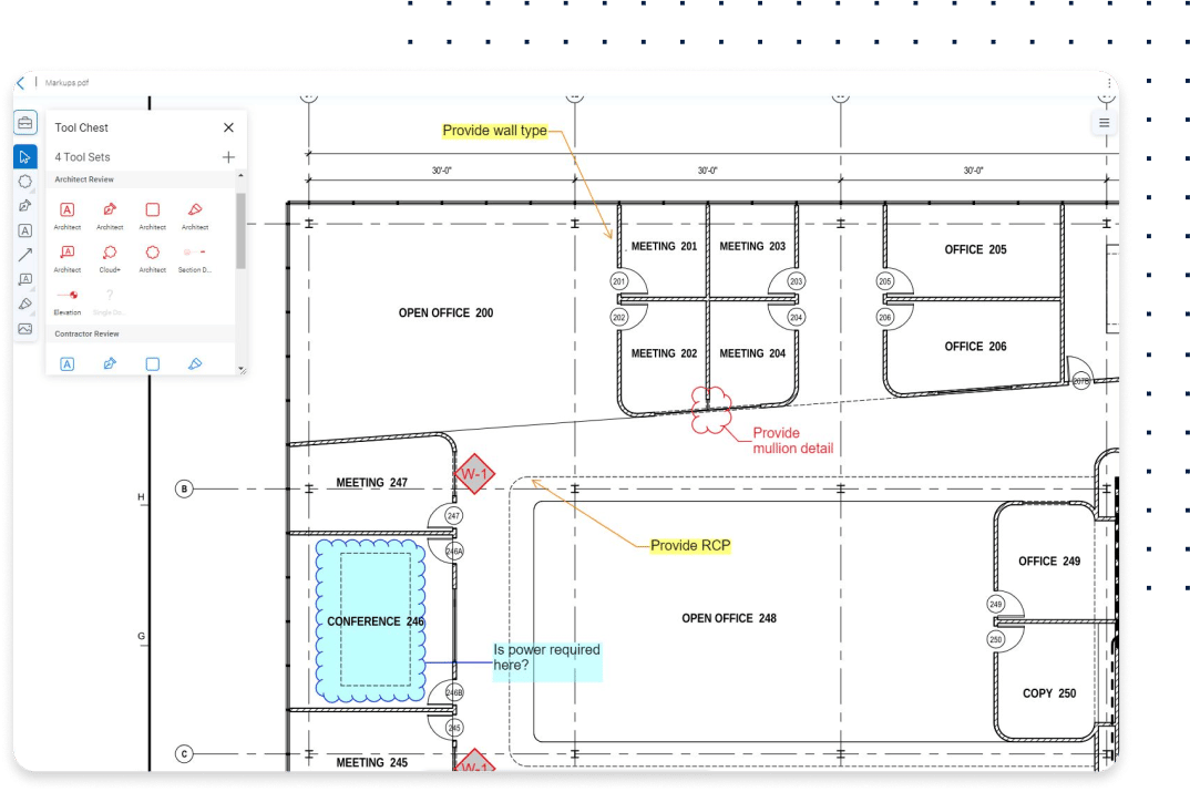
  1. Centralize your drawings, documents, and data in one place, so teammates can securely access, upload, review and edit the latest updates from anywhere.

  2. Keep PDF sets organized and up to date with the time-saving automation tools in Bluebeam® Revu®, then share with teams in the field.

  3. Access your documents and tool sets from Revu from your web browser or mobile device using Bluebeam Cloud.

RFI collaboration markup on construction document software interface Construction Document & Drawing Management Revu software organized PDF sets document and tool set access in Bluebeam Cloud Construction Document & Drawing Management software

POPULAR FEATURES

All the tools you need to finish the job faster

Construction document management made easy

Here’s how Bluebeam helps streamline your construction drawing and document management for better results, project after project.

Two construction workers looking at a laptop together
  • Standardize communication

    Quickly and easily access the information you need from anywhere. Ensure everyone’s aligned on project requirements and progress to prevent costly mistakes.

  • Reduce costs

    Lower administrative costs and enhance efficiency with real-time markups, automated workflows, and version control.

  • Increase compliance

    Ensure compliance with industry regulations and standards by providing accurate records, audit trails, and customizable workflows.

  • Enhance coordination

    Streamline coordination between with real-time collaboration and industry-standard tools, ensuring everyone works towards the same goals.

You’re in good company

Bluebeam empowers teams to collaborate more efficiently, profitably, and securely.

1,000% growth

Mechwest was able to grow their team by 10x after adopting Bluebeam for digital document management.

See how they did it

$70,000 saved

Bluebeam helped Premier Mechanical digitize project delivery, saving time and paper costs.

Read the full case study

20-50% less paper

Ribuna AG used Bluebeam to digitize documentation and collaboration and significantly reduced paper costs.

See how they did it

Explore case studies

INTEGRATIONS

Connect your apps with Bluebeam

Get more done in one place. Connect with external apps, automate custom workflows and share data across devices, systems and teams.

Bluebeam partner SDS2 logo Bluebeam partner DropBox logo Bluebeam partner Google Drive logo Bluebeam partner 123onsite by Nevaris logo Bluebeam partner DroneDeploy logo Bluebeam partner HoloBuilder logo Bluebeam partner Vectorworks logo Bluebeam partner Fieldlens logo Bluebeam partner Tyler Technologies logo Bluebeam partner Egnyte logo Bluebeam partner SDS2 logo Bluebeam partner DropBox logo Bluebeam partner Google Drive logo Bluebeam partner 123onsite by Nevaris logo Bluebeam partner DroneDeploy logo Bluebeam partner HoloBuilder logo Bluebeam partner Vectorworks logo Bluebeam partner Fieldlens logo Bluebeam partner Tyler Technologies logo Bluebeam partner Egnyte logo Bluebeam partner SDS2 logo Bluebeam partner DropBox logo Bluebeam partner Google Drive logo Bluebeam partner 123onsite by Nevaris logo Bluebeam partner DroneDeploy logo Bluebeam partner HoloBuilder logo Bluebeam partner Vectorworks logo Bluebeam partner Fieldlens logo Bluebeam partner Tyler Technologies logo Bluebeam partner Egnyte logo

Explore Apps & Integrations

RESOURCES

Everything you need to get the job done.

Frequently asked questions

What is construction drawing & document management?

What kind of software do AECO professionals use for construction drawing and document management?

What are the benefits of using construction drawing and document management software?

How does construction drawing management work within Bluebeam?

How does document management software improve stakeholder collaboration?

How does Bluebeam handle version control for engineering drawings?

Discover what Bluebeam can do for you